Casa Sáenz Pardo



Casa Saénz Pardo
Casa Saenz Pardo
Residencia de 3 niveles, construida en un terreno accidentado, donde emerge un monolito a base de concreto pigmentado, esculpido para abrir un patio central que conecta interiores y exteriores a través de vistas transversales e invita a la flora y fauna del sitio a habitar con sus usuarios.
La distribución de la casa es la siguiente: planta baja-servicios; primer nivel-área pública, y la planta alta-área privada. Además posee un patio central como elemento articulador: desdibujando así el límite del espacio interior y el exterior. La cocina es un ejemplo claro de esto: ¿dónde está el afuera y el adentro?. El proyecto, en general, puede ser un área de interacción modulable: tiene la capacidad de adaptarse a diferentes eventos; el usuario puede conectar o disgregar los espacios, dependiendo la posición de los canceles y cortinas.
Un modelo sustentable de uso y gestión del agua forma parte de esta edificación, la cual reconoce las necesidades del cliente y del sitio. Así, la gestión del vital líquido abastece a las áreas verdes sembradas de manera estratégica dentro y a los alrededores de la casa.
En la planta alta se encuentra un jardín formado por vegetación xerófila, entre otras más, las cuales producen un microclima donde la fauna silvestre es bienvenida a cohabitar. Es un santuario donde el diseño genera un puente con el cielo y el recurso esencial que ofrece: la lluvia. Así el paisajismo va más allá de lo contemplativo, y reafirma los elementos endémicos, planta a planta, flor a flor, sobreponiéndose a los rascacielos.
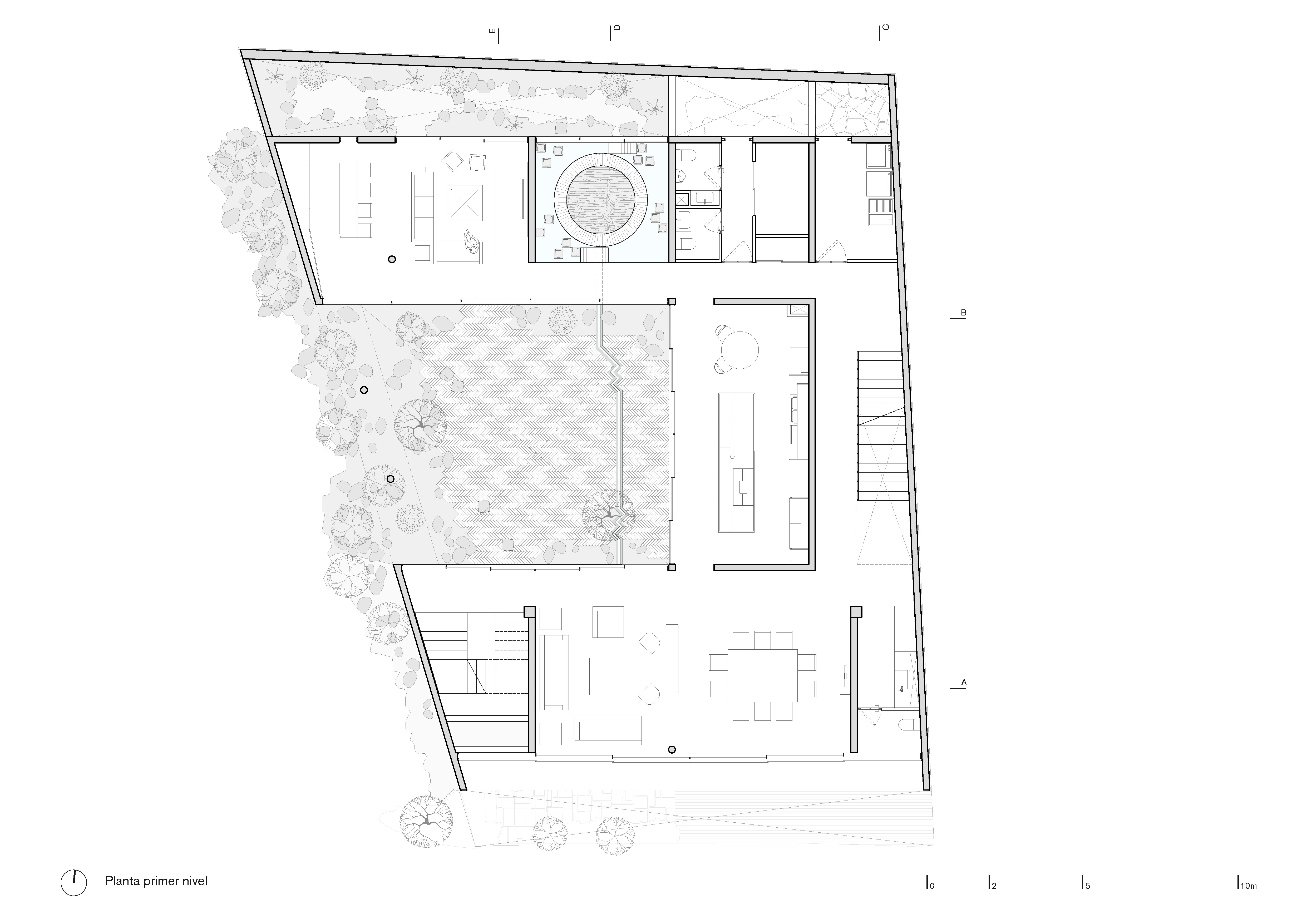
Casa Saenz Pardo
Residencia de 3 niveles, construida en un terreno accidentado, donde emerge un monolito a base de concreto pigmentado, esculpido para abrir un patio central que conecta interiores y exteriores a través de vistas transversales e invita a la flora y fauna del sitio a habitar con sus usuarios.
La distribución de la casa es la siguiente: planta baja-servicios; primer nivel-área pública, y la planta alta-área privada. Además posee un patio central como elemento articulador: desdibujando así el límite del espacio interior y el exterior. La cocina es un ejemplo claro de esto: ¿dónde está el afuera y el adentro?. El proyecto, en general, puede ser un área de interacción modulable: tiene la capacidad de adaptarse a diferentes eventos; el usuario puede conectar o disgregar los espacios, dependiendo la posición de los canceles y cortinas.
Un modelo sustentable de uso y gestión del agua forma parte de esta edificación, la cual reconoce las necesidades del cliente y del sitio. Así, la gestión del vital líquido abastece a las áreas verdes sembradas de manera estratégica dentro y a los alrededores de la casa.
En la planta alta se encuentra un jardín formado por vegetación xerófila, entre otras más, las cuales producen un microclima donde la fauna silvestre es bienvenida a cohabitar. Es un santuario donde el diseño genera un puente con el cielo y el recurso esencial que ofrece: la lluvia. Así el paisajismo va más allá de lo contemplativo, y reafirma los elementos endémicos, planta a planta, flor a flor, sobreponiéndose a los rascacielos.
Proyecto: Alexander Garduño
Equipo de diseño: Alexander Garduno, Ivan Lopez bringas
Ubicacion: Huixquilucan, Edo. Méx.
Tipologia: Vivienda
Cliente: Familia Saenz Pardo
Año: 2019–2022
Area: 668 m2
Paisajismo: Luis Guisar Benitez
Fotografia: Andres Cedillo
Publicaciones:
Design Boom
Glocal

























