CASA UNAM

CASA UNAM (Tesis)
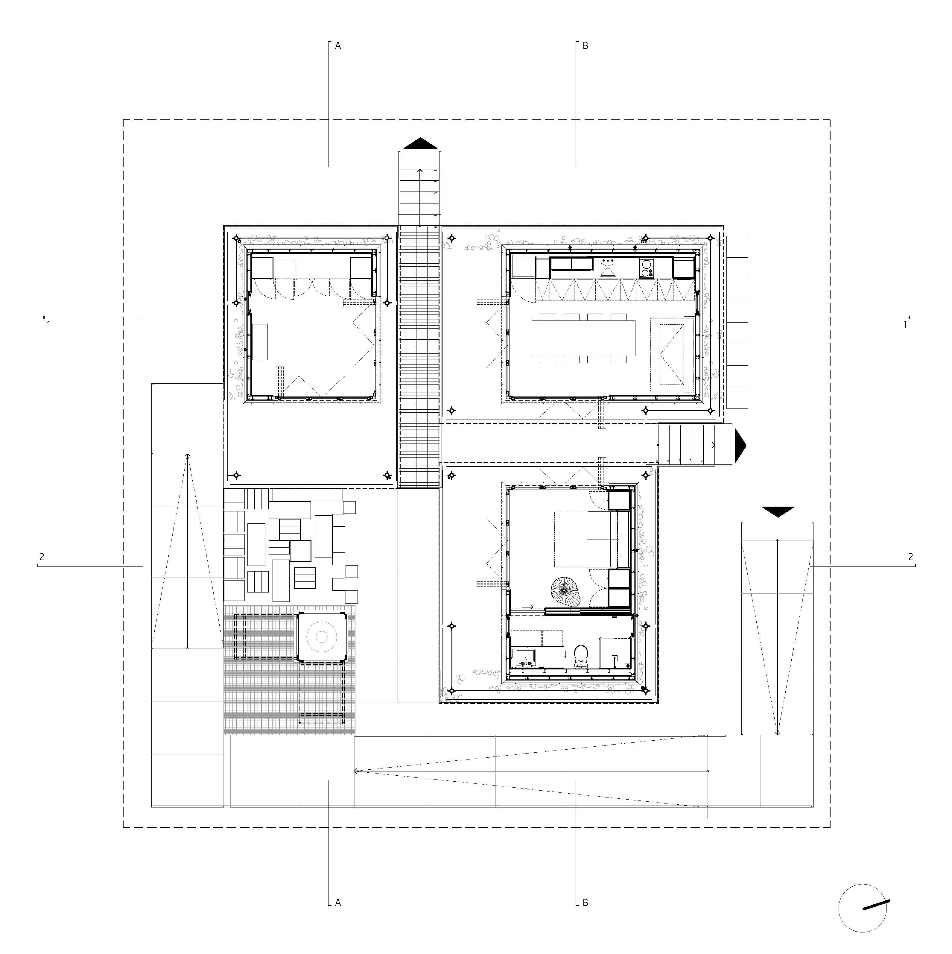
El sistema de CASA es una tecnología asequible de construcción ligera, compuesta por una serie de productos que ofrecen una solución energéticamente eficiente y personalizable de expansión de estructuras existentes cuyo resultado logra edificaciones ambientalmente responsables y rápidas de construir. Dirigida a espacios residuales subdesarrollados dentro de la ciudad, CASA es una opción viable para la densificación inmediata dentro de la ciudad que disminuye el costo del terreno. Se implanta cerca de los medios de transporte masivos, reduce la distancia entre las personas y sus actividades. Regenera un ecosistema degradado a escala local, aumentando la resiliencia para enfrentar el inminente cambio climático y las futuras crisis económicas y energéticas globales.
Posición:
-Cad Manager, lider de construcción
Participación:
-Competencia “Solar Decathlon Europe 2014”.
-Colaboración en el diseño conceptual y propuesta arquitectónica.
-Desarrollo de proyecto ejecutivo.
-Desarrollo de modelo 3D e imágenes objetivo.
-Participación en workshop “Solar Decathlon Europe 2014”
-Elaboración de 6 documentos oficiales “Project Drawings”
-Coordinador de ingenierías con el Instituto de ingeniería de la UNAM
-Construcción y prototipado en Versailles, France
Proyecto: TEAM CASA UNAM
Ubicacion: México,Versalles-Francia
Tipologia: Vivienda
Cliente: DSOLAR 2014 UNAM
Año: 2012–2014
Area: 173 m2





