Vilha Jardim Botânico

Vilha Jardim Botânico
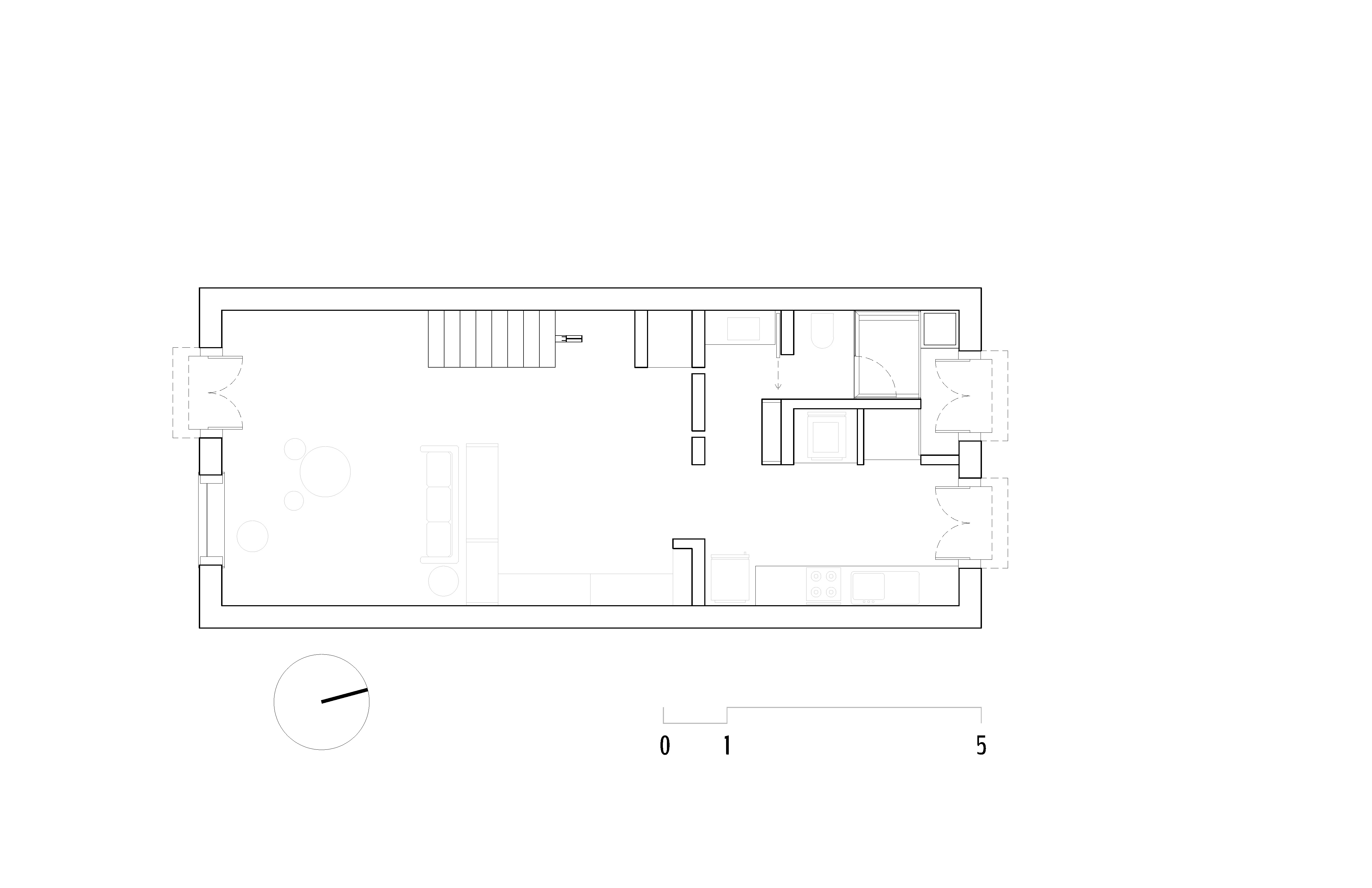
El proyecto consiste en la intervención de una casa del siglo XIX. El Barrio Vilha Jardim Botanico actualmente se encuentra en vías de transformación debido al cambio de uso de suelo y con esto se está impulsando la detonación de un barrio artístico/cultural, el cual ofrece la llegada de estudios, talleres, galerías y la inclusión de diferentes grupos sociales.
El programa arquitectónico está conformado por sala, galería, taller y circulaciones, que permiten visualizar las obras de artistas invitados. De igual manera, existe un espacio para artistas residentes que se conforma con servicios como: cocina, recamara y duchas.
Los grandes entrepisos con los que contaba la edificación nos permite jugar con las alturas de los entrepisos, permitiéndonos ganar uno o dos niveles dentro del proyecto.
La idea del proyecto es generar diferentes planos dentro de una edificación tradicional, la idea es asemejar una pieza porosa que habita dentro de la antigua casa.
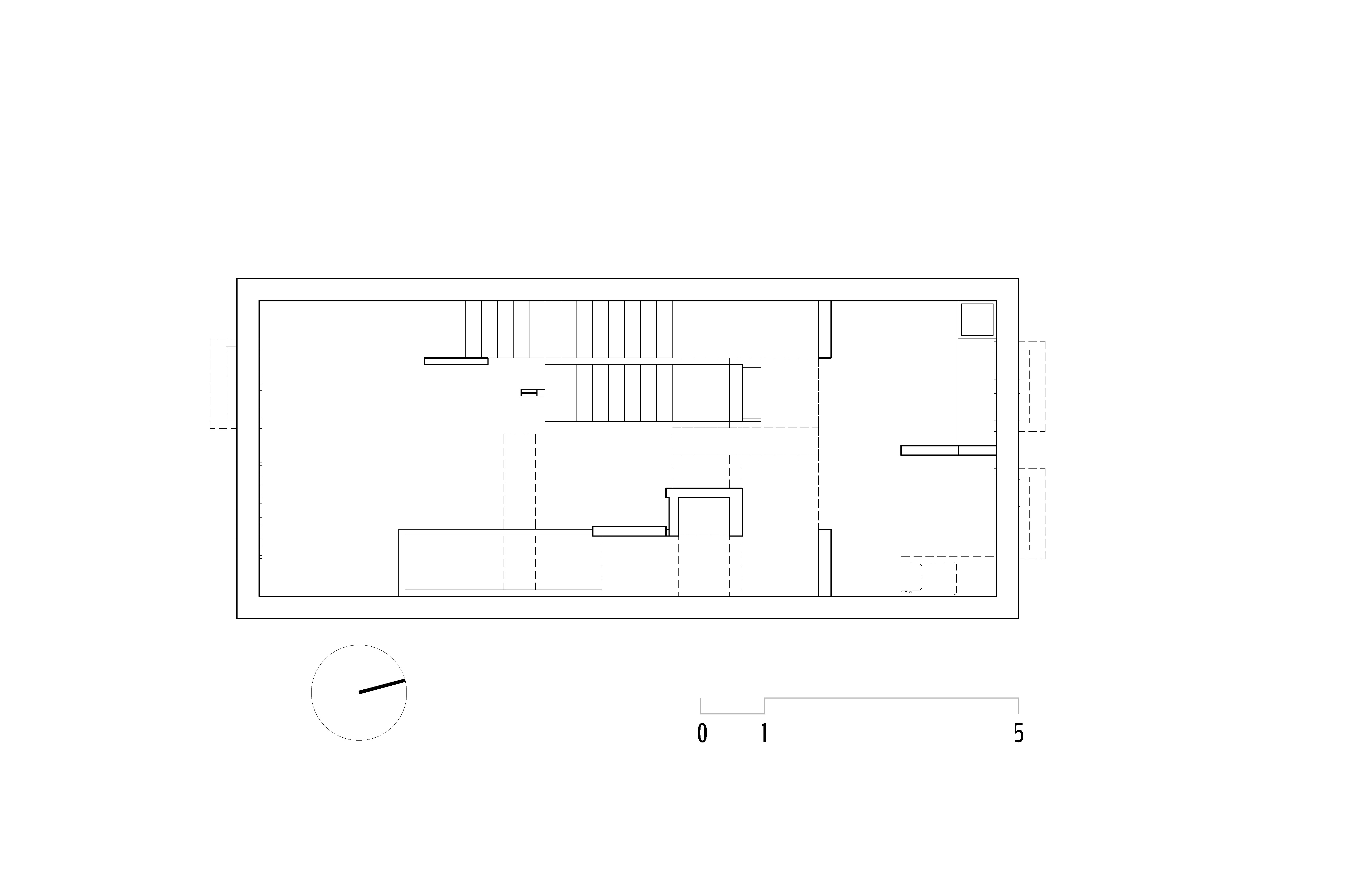
El proyecto consiste en la intervención de una casa del siglo XIX. El Barrio Vilha Jardim Botanico actualmente se encuentra en vías de transformación debido al cambio de uso de suelo y con esto se está impulsando la detonación de un barrio artístico/cultural, el cual ofrece la llegada de estudios, talleres, galerías y la inclusión de diferentes grupos sociales.
El programa arquitectónico está conformado por sala, galería, taller y circulaciones, que permiten visualizar las obras de artistas invitados. De igual manera, existe un espacio para artistas residentes que se conforma con servicios como: cocina, recamara y duchas.
Los grandes entrepisos con los que contaba la edificación nos permite jugar con las alturas de los entrepisos, permitiéndonos ganar uno o dos niveles dentro del proyecto.
La idea del proyecto es generar diferentes planos dentro de una edificación tradicional, la idea es asemejar una pieza porosa que habita dentro de la antigua casa.
Proyecto: Alexander Garduño
Ubicacion: Rio de Janeiro, RJ. Brasil
Tipologia: Vivienda
Cliente: Regina Medrado
Año: 2012
Area: 180 m2













